For Sale

$748,962

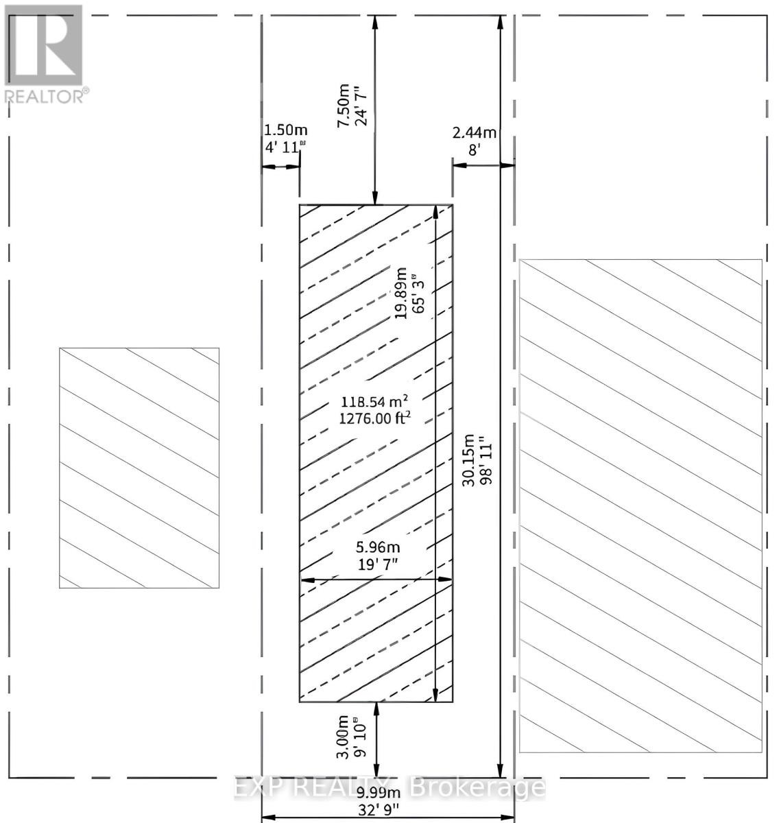
185 YORK STREET , Ottawa, Ontario K1N5T7

Remarks

Prime development site in Ottawa's ByWard Market. 185 York Street offers exceptional zoning flexibility with current R5S S77 zoning and future N6B S77 designation under Ottawa's New Zoning By-law. Permitted uses include low-rise, mid-rise, and high-rise apartment dwellings, with the ability to build up to 6 storeys (21.4 m height) by-right. A clean Phase 1 Environmental Site Assessment from 2022 is on file. Previously approved minor variances for lot width and area help streamline development without the need for public consultation. The property measures approximately 33 x 99 feet (3,209 sq ft). Ideally located steps to the Rideau Centre, University of Ottawa, Parliament Hill, O-Train station, and the ByWard Market, this site is well suited for boutique urban residential projects, purpose-built rentals, or luxury multi-unit development. Ground-floor commercial uses are permitted, including retail, office, or café-style activation, making it attractive for mixed-use development. Situated on York Street, slated for transformation into a pedestrian-priority shared promenade between 2025 and 2027 as part of the ByWard Market Public Realm Plan, the property offers strong exposure and long-term upside. No demolition required, providing immediate time and cost savings. Buyers to complete their own due diligence regarding development potential, building code compliance, and site planning. A rare opportunity to secure a premium lot in one of Ottawa's most vibrant downtown locations. (id:7526)

Property Summary

  • Neighbourhood: 4001 - Lower Town/Byward Market
  • Lot Frontage: 32.3 Feet
  • Lot Depth: 99.7 Feet
  • Lot Size: 32.38 x 99.7 FT
  • Zoning: R5S S77

Property Features:

  • Property Type:
    Vacant Land

Listing courtesy of: 

EXP REALTY

Office Listing: 

Edmundo Roa , Salesperson

Lifestyle
Neighbourhood Info

Get More Info

Book a tour